С 27 июля в Советском районе Казани частично закрываются для движения улицы Зур Урам и Сеченова.
Как сообщает Комитет внешнего благоустройства города, с 27 июля по 8 августа в Казани полностью поэтапно закрывается проезжая часть ул.Зур Урам, на участке от дома №1 до дома №7, с устройством объездной дороги.
Закрытие связано с необходимостью устройства приямков под горизонтальное бурение для прокладки канализации. Схема:

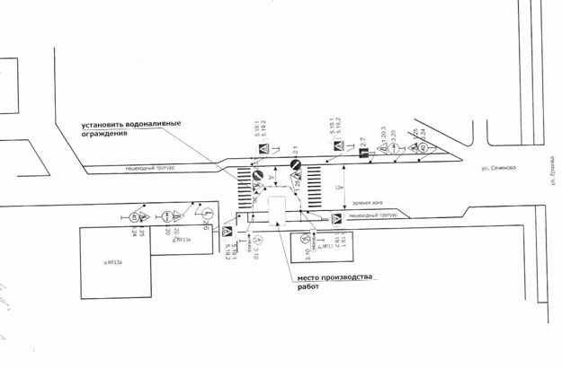
Также с 27 июля по 12 августа частично закрывается ул.Сеченова в районе дома №11. Закрытие связано с необходимостью производства работ по прокладке канализации. Схема:

Исполнительный комитет города просит автомобилистов быть внимательными и следовать требованиям временных дорожных знаков.
Читайте также:
Улицу Тукая закрыли для транспорта
Движение чемпионата - Все, что нужно знать о движении общественного и личного транспорта в период проведения ЧМ-2015.